West Engineering Logo

Our Projects

Commerical kitchen

This project featured a high-demand commercial kitchen, requiring an efficiently focused HVAC layout. The system features a network of strategically routed supply to ensure balanced ventilation. Zoned air distribution allows for precise temperature control, and the ductwork layout minimizes airflow disruption across key workstations, and especially maintains comfort standards for staff.

Bardo Restaurant Project

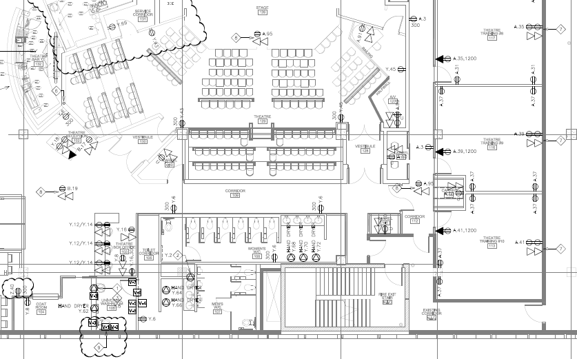
Theater

The seamless coordination of infrastructure, power, and AV to enable a completely immersive performance environment was a crucial component of this project. With seamless integration of central stage and piano plate connections, the design offers future-ready support for events that call for multi-point audio capture and projection. A/V pathways are routed with precision to IT and lighting racks in adjacent control rooms, ensuring clean separation of signal and power infrastructure.

Second City Theater

Dining Hall

We delivered a tailored electrical design for this lively dining hall and central bar layout. The design effortlessly integrates with a retractable roof system and provides electricity for all requirements, including general outlets and kitchen and bar equipment. Panel scheduling was thoughtfully designed to enhance functionality and future flexibility by guaranteeing balanced loads, clear circuit distribution, and simple maintenance.

Boston Pizza HVAC Project